alonso blázquez
Mosiaco Urbano es un proyecto arquitectónico que busca hacer una crítica al modelo actual de urbanización de Valdebebas. Para ello se realizó un estudio de la zona para tomar conclusiones de los proyectos urbanísticos proyectados. Llegando a la conclusión de que es un barrio con poca escala humana donde los peatones se ven como elementos secundarios por detrás del trafico rodado, además de las grandes distancias entre establecimientos de primeras necesidades.
Tras la conclusión tomada, se decidió realizar un proyecto urbanístico basado en calles peatonales estrechas y zonas verdes acogidas entre parcelas de viviendas de baja altura.

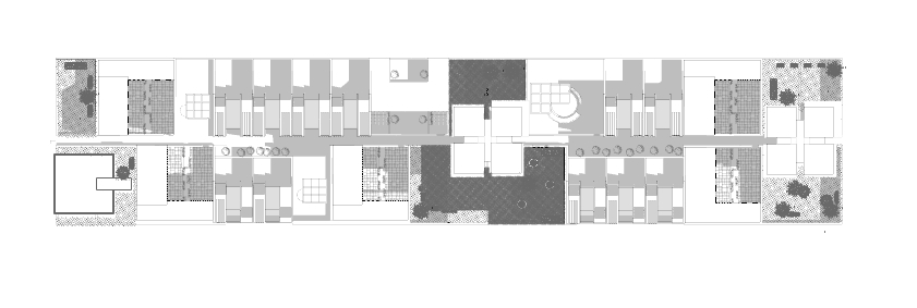
El proyecto plantea la organización de la parcela mediante la división del ámbito en un total de 550 parcelas, dispuestas de forma ordenada de manera que cada dos franjas de parcelas se articula una vía de acceso, generando así una trama regular a modo de parrilla de piezas habitables. Esta estructura se ve reforzada por la incorporación de un pasillo central de carácter público, que actúa como eje principal del ámbito y permite la conexión directa entre el intercambiador y el Hospital Isabel Zendal, consolidándose como un elemento vertebrador del conjunto.
Las parcelas resultantes se clasifican atendiendo tanto a su tamaño como a su uso. En cuanto a la dimensión, se distinguen parcelas de 20 × 20 metros y parcelas de 20 × 10 metros. Respecto al uso, se diferencian parcelas destinadas a uso público y parcelas de carácter privado, vinculadas en muchos casos a este eje público central.
Las parcelas privadas se destinan a uso residencial, acogiendo distintas tipologías de vivienda. Las parcelas de 20 × 10 metros se ocupan con viviendas adosadas, siempre alineadas en su borde oeste, con el objetivo de garantizar que todas las viviendas sean pasantes. Por su parte, las parcelas de 20 × 20 metros se destinan principalmente a viviendas unifamiliares, mayoritariamente desarrolladas en una sola planta.
A continuación vamos a desarrollar cada tipo de vivienda con sus características principales:

Las viviendas unifamiliares implantadas en parcelas de 20 × 20 metros se proyectan en torno a un espacio central amplio que actúa como elemento organizador de la vivienda. A partir de este espacio principal se articulan las distintas estancias, vinculadas a núcleos situados en los extremos de la casa, lo que permite una organización clara y funcional del programa. La distribución de la vivienda propone un sistema de iluminación natural durante todo el día ya que dispone dos fachadas completamente abiertas al exterior permitiendo la entrada de luz.
El proyecto contempla dos tipologías de vivienda dentro de estas dimensiones: una tipología desarrollada en una única planta y otra pensada para familias numerosas, en la que la vivienda se organiza en dos plantas. En este segundo caso, la planta superior incorpora dos dormitorios adicionales respecto al modelo de una sola planta, manteniendo la misma estructura general de la vivienda.

En las parcelas de 20 × 10 metros se propone una tipología de vivienda adosada organizada en hileras. Estas viviendas se disponen con la fachada principal completamente abierta hacia el este, donde se sitúa un jardín privado que actúa como prolongación del espacio interior.
La vivienda se organiza en dos plantas, concentrando el programa principal en la planta baja y la zona más privada en la planta superior. En esta planta superior se disponen entre tres y cuatro dormitorios, mientras que en la planta inferior se incorpora un dormitorio adicional, lo que permite una mayor flexibilidad de uso, ya sea para invitados, personas con movilidad reducida o como espacio polivalente.
La vivienda incorpora un sistema de control solar mediante celosías verticales en las ventanas, cuya disposición puede adaptarse según las necesidades del usuario y la cantidad de luz natural requerida en cada momento. Asimismo, se disponen celosías horizontales situadas por encima de la cubierta, con la función de generar mayor sombra sobre el jardín o la terraza posterior, mejorando el confort de los espacios exteriores.
Los adosados se proyectan de manera que, en caso de necesidad, la vivienda pueda subdividirse, permitiendo la independencia de una de las plantas y favoreciendo así su posible uso en régimen de alquiler. Además, en aquellas viviendas cuya edificación da directamente a la calle, se contempla la incorporación de un local con acceso independiente desde el exterior, posibilitando el desarrollo de una actividad comercial o profesional.

Con el objetivo de aumentar la densidad residencial por hectárea, se implantan sobre las zonas públicas una serie de piezas verticales, liberando prácticamente la planta baja para no interferir en el tránsito público a lo largo del pasillo central que conecta el intercambiador con el hospital. De este modo, la edificación se eleva y permite la continuidad del espacio público a nivel del suelo.
La arquitectura de la torre viene definida por la disposición de las plantas en bloques de cuatro bandejas horizontales, orientadas de manera que las vistas de las viviendas se dirigen principalmente hacia el frente, evitando la relación visual directa con las parcelas colindantes. Las plantas se organizan mediante un corredor central que alberga dos núcleos de comunicación vertical, compuestos por escaleras y ascensores, desde los cuales se accede a dos viviendas por planta.
Cada vivienda se proyecta con orientación pasante sur–norte, garantizando que todas dispongan de las mismas condiciones de iluminación natural y ventilación. La fachada de la torre se resuelve principalmente mediante superficies acristaladas, lo que permite una elevada entrada de luz natural. Para el control de esta luminosidad, cada vivienda incorpora un sistema de celosías que permite regular la incidencia solar y preservar la privacidad cuando se requiera.
Se proponen cuatro tipologías distintas de vivienda. Dos de ellas constituyen las tipologías mayoritarias y se desarrollan en una única planta, diferenciándose principalmente por su distribución interior. Una de las tipologías cuenta con dos dormitorios y un espacio amplio que integra cocina y salón, mientras que la segunda dispone de tres dormitorios y una zona de estar de menor superficie. En ambos casos, la distribución se diseña priorizando una mayor iluminación en las zonas comunes y una luz más controlada en los espacios privados destinados a dormitorios.
La torre se remata con dos piezas singulares que coronan el edificio, correspondientes a viviendas dúplex de mayor superficie. Estas viviendas permiten una mayor flexibilidad programática, con la posibilidad de incorporar un mayor número de habitaciones, y cuentan con amplias terrazas situadas en la parte superior del edificio, reforzando su carácter singular dentro del conjunto.

El resultado de la unión de las distintas piezas que conforman el “mosaico” genera una distribución heterogénea del espacio proyectado. En la imagen se puede apreciar la calle central que da acceso a las viviendas, concebida con una anchura de tres metros, lo que establece un fuerte contraste con la urbanización del barrio de Valdebebas. Esta diferencia de escala se plantea de manera intencionada, con el objetivo de enfatizar la crítica propuesta hacia el modelo de espacio público predominante en el entorno.

La propuesta final integra las “piezas del mosaico” diseñadas por cada miembro del grupo arquitectónico, con el objetivo de generar una mayor diversidad tipológica y evitar la homogeneidad de las calles. Esta estrategia enfatiza el contraste con las calles circundantes, caracterizadas por edificaciones similares y uniformes, donde el mismo tipo arquitectónico se repite constantemente, reduciendo la diferenciación entre una calle y otra y haciendo necesario el uso de dispositivos de navegación para orientarse si se es nuevo en la zona.